Каталог запасных частей к технике: ГАЗ-3307. Платформа

zoom-in zoom-out enlarge shrink circle-right circle-left file-text2 info cart arraw right arraw left zoom out zoom in arraw maximize arraw minimize
1
2
3
4
4
4
5
6
7
8
8
8
8
8
8
8
8
8
8
9
9
10
10
10
10
10
10
11
12
13
14
15
16
17
18
18
18
18
18
18
19
19
20
20
20
20
20
20
20
21
21
21
22
23
23
23
24
24
25
26
27
27
27
27
28
29
30
31
32
32
32
33
34
35
36
37
38
38
39
40
40
41
41
41
42
43
44
45
46
47
48
49
50
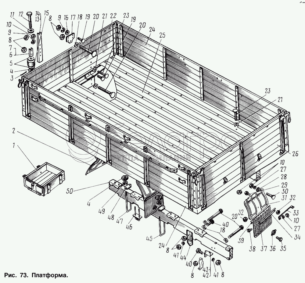
3307-8500010
Платформа с бортами
В узле: 1
1
53-07-8507010
Ящик инструментальный в сборе
В узле: 1
2
3307-8511020
Брызговик заднего колеса в сборе
В узле: 4
3
258040-П29
Шплинт 3,2х25 ОСТ 37.001.171-93
В узле: 2
4
250515-П29
Гайка М12х1,25-6Н ОСТ 37.001.124-93
В узле: 8
4
250515-П29
Гайка М12х1,25-6Н ОСТ 37.001.124-93
В узле: 2
5
252045-П29
Шайба 12 ОСТ 37.001.144-96
В узле: 4
6
53-500019-Б
Башмак установочного угольника платформы левый
В узле: 1
7
53-8500018-Б
Башмак установочного угольника правый
В узле: 1
8
250512-П29
Гайка М10-6Н ОСТ 37.001.124-93
В узле: 2
8
250512-П29
Гайка М10-6Н ОСТ 37.001.124-93
В узле: 6
8
250512-П29
Гайка М10-6Н ОСТ 37.001.124-93
В узле: 4
8
250512-П2
Гайка М10-6Н
В узле: 3
8
250512-П2
Гайка М10-6Н
В узле: 2
8
250512-П29
Гайка М10-6Н ОСТ 37.001.124-93
В узле: 2
9
252156-П2
Шайба 10Л ОСТ 37.001.115-75
В узле: 2
10
250510-П29
Гайка М8-6Н ОСТ 37.001.124-93
В узле: 1
10
250510-П29
Гайка М8-6Н ОСТ 37.001.124-93
В узле: 2
10
250510-П29
Гайка М8-6Н ОСТ 37.001.124-93
В узле: 4
10
250510-П29
Гайка М8-6Н ОСТ 37.001.124-93
В узле: 8
11
293370-П29
Шайба 12
В узле: 2
12
205467-П29
Болт 2М12х1,25-6gх70 ОСТ 37.001.123-96
В узле: 2
13
53-8500017-30
Угольник установочный на платформе левый
В узле: 1
14
53-8500016-30
Угольник установочный на платформе правый
В узле: 1
15
11-18081
Подушка стойки стабилизатора нижняя
В узле: 2
16
252006-П29
Шайба 10 ОСТ 37.001.144-96
В узле: 2
17
53-27-8501064
Пластина крепления балки с подкладкой
В узле: 1
18
92Ю-8501120-А
Шайба специальная
В узле: 3
18
92Ю-850120-А
Шайба специальная под головку болта
В узле: 2
18
92Ю-8501120-А
Шайба специальная
В узле: 2
18
92Ю-8501120-А
Шайба специальная
В узле: 6
18
92Ю-8501120-А
Шайба специальная
В узле: 4
19
210406-П29
Болт М10-6gх30
В узле: 2
20
210417-П8
Болт М10-6gх90
В узле: 2
20
210417-П8
Болт М10-6gх90
В узле: 2
20
210417-П8
Болт М10-6gх90
В узле: 3
20
210417-П8
Болт М10-6gх90
В узле: 4
20
210417-П8
Болт М10-6gх90
В узле: 6
21
91Ю-8502252-А
Шайба специальная
В узле: 4
21
91Ю-8502252-А
Шайба специальная
В узле: 2
22
3307-8504010
Борт передний в сборе
В узле: 1
23
210385-П8
Болт М8-6gх50
В узле: 2
23
210385-П29
Болт М8-6gх50 ОСТ 37.001.106-75
В узле: 4
24
3307-8502010
Борт боковой в сборе
В узле: 2
25
3307-8501012
Основание платформы в сборе
В узле: 1
26
3307-8503010
Борт задний
В узле: 1
27
252155-П2
Шайба 8Л ОСТ 37.001.115-75
В узле: 1
27
252155-П2
Шайба 8Л ОСТ 37.001.115-75
В узле: 2
27
252155-П2
Шайба 8Л ОСТ 37.001.115-75
В узле: 8
28
293379-П29
Шайба 12,5
В узле: 8
29
290502-П29
Болт М6-6gх14
В узле: 8
30
210379-П29
Болт М8-6gх20 ОСТ 37.001.106-75
В узле: 8
31
3307-8511024
Брызговик заднего колеса
В узле: 1
32
250508-П29
Гайка М6-6Н ОСТ 37.001.124-93
В узле: 4
32
250508-П29
Гайка М6-6Н ОСТ 37.001.124-93
В узле: 8
33
3307-8511026
Кронштейн брызговика
В узле: 1
34
53-8511194
Планка фартука заднего брызговика
В узле: 2
35
201417-П29
Болт М6-6gх14 ОСТ 37.001.123-96
В узле: 4
36
ФП310Е
Световозвращатель
В узле: 2
37
53-8511188
Фартук
В узле: 2
38
201456-П29
Болт М8-6gх20 ОСТ 37.001.123-96
В узле: 1
38
201456-П29
Болт М8-6gх20 ОСТ 37.001.123-96
В узле: 2
39
3307-8208042
Пластина отражателя света
В узле: 2
40
201496-П29
Болт М10-6gх22 ОСТ 37.001.123-96
В узле: ---
40
201496-П29
Болт М10-6gх22 ОСТ 37.001.123-96
В узле: 2
41
252136-П2
Шайба 10 ОТ ОСТ 37.001.115-75
В узле: 2
41
252136-П2
Шайба 10 ОТ ОСТ 37.001.115-75
В узле: 6
42
53-8500079
Упор платформы задний левый
В узле: 1
43
53-8500078
Упор платформы задний правый
В узле: 1
44
3307-8500114
Кронштейн крепления платформы
В узле: 2
45
53-8500074
Стремянка средняя
В узле: 2
46
53-27-8501074
Подкладка стремянок крепления балок
В узле: 2
47
53-8500022
Стремянка передняя
В узле: 2
48
53-8500032
Накладка стремянки
В узле: 4
49
252137-П2
Шайба 12.ОТ ОСТ 37.001.115-75
В узле: 8
50
53-12-8501370
Кронштейн средних поперечных балок в сборе
В узле: 8
Содержащиеся в справочниках-каталогах запасные части и детали не предлагаются к продаже, а носят исключительно информационный характер

Ваша заявка была отправлена. В ближайшее время наши специалисты с Вами свяжутся по указанному Вами телефону.

Представьтесь
Поле обязательно для заполнения
Ваш телефон
Введите правильный номер телефона
E-mail
Введите правильный e-mail
Тема
Тема
применяемость финансирование доставка цена, наличие другое сервис и гарантия
Время для звонка
08:00
08:00 09:00 10:00 11:00 12:00 13:00 14:00 15:00 16:00 17:00 18:00 19:00
19:00
08:00 09:00 10:00 11:00 12:00 13:00 14:00 15:00 16:00 17:00 18:00 19:00

Мы постараемся перезвонить в указанное время

Если вы не хотите ждать, то звоните нашим вежливым консультантам:

8 800 100-2-700
Подтвердите, что вы не робот
Подтвердите, что вы не робот
Спасибо!

Ваше сообщение успешно отправлено!

ЗакрытьПовторить попытку