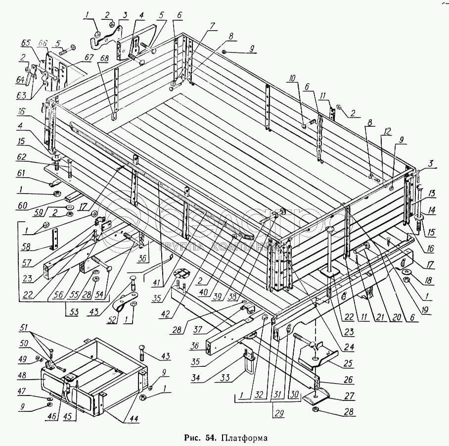
Каталог запасных частей к технике: ГАЗ-52-02. Платформа

zoom-in zoom-out enlarge shrink circle-right circle-left file-text2 info cart arraw right arraw left zoom out zoom in arraw maximize arraw minimize
1
1
1
1
1
1
1
2
2
2
2
2
3
3
4
4
4
5
5
5
6
6
6
7
8
8
9
9
9
9
9
10
10
10
11
11
12
13
14
15
15
15
16
16
16
17
17
18
19
20
20
21
21
22
22
23
23
24
24
25
26
27
28
28
28
29
30
30
31
32
32
33
34
35
35
36
36
37
38
39
40
41
42
43
43
44
45
46
47
48
49
49
50
51
51
51
52
53
54
54
55
56
57
58
59
60
61
62
63
64
65
66
67
68
1
250512-П2
Гайка М10-6Н
В узле: 2
1
250512-П2
Гайка М10-6Н
В узле: 6
1
250512-П2
Гайка М10-6Н
В узле: 8
1
250512-П2
Гайка М10-6Н
В узле: 16
1
250512-П2
Гайка М10-6Н
В узле: 2
1
250512-П2
Гайка М10-6Н
В узле: 4
1
250512-П29
Гайка М10-6Н ОСТ 37.001.124-93
В узле: 4
2
250510-П2
Гайка М8-6Н ОСТ 37.001.124-93
В узле: 4
2
250510-П2
Гайка М8-6Н ОСТ 37.001.124-93
В узле: 5
2
250510-П2
Гайка М8-6Н ОСТ 37.001.124-93
В узле: 10
2
250510-П2
Гайка М8-6Н ОСТ 37.001.124-93
В узле: 16
2
250510-П2
Гайка М8-6Н ОСТ 37.001.124-93
В узле: 44
3
92-8503051-А
Крюк затвора платформы левый
В узле: 1
3
92-8503051-А
Крюк затвора платформы левый
В узле: 1
4
210411-П4
Болт М10х55
В узле: 2
4
210411-П4
Болт М10х55
В узле: 2
4
210411-П4
Болт М10х55
В узле: 16
5
210386-П4
Болт М8х55
В узле: 4
5
210386-П4
Болт М8х55
В узле: 4
5
210386-П4
Болт М8х55
В узле: 16
6
92-8502042-А
Планка бортов внутренняя
В узле: 3
6
92-8502042-А
Планка бортов внутренняя
В узле: 8
7
92-8504018-А
Усилитель крайний
В узле: 2
8
210363-П4
Болт М6х45
В узле: 10
8
210363-П4
Болт М6х45
В узле: 12
9
250508-П2
Гайка М6-6Н
В узле: 10
9
250508-П2
Гайка М6-6Н
В узле: 12
9
250508-П29
Гайка М6-6Н ОСТ 37.001.124-93
В узле: 2
9
250508-П29
Гайка М6-6Н ОСТ 37.001.124-93
В узле: 3
9
250508-П29
Гайка М6-6Н ОСТ 37.001.124-93
В узле: 6
10
210385-П4
Болт М8х50
В узле: 16
10
210385-П4
Болт М8х50
В узле: 44
10
210385-П4
Болт М8х50
В узле: 16
11
92-8502040-Б
Петля откидных бортов верхняя средняя в сборе
В узле: 1
11
92-8502040-Б
Петля откидных бортов верхняя средняя в сборе
В узле: 4
12
92-8503040-20
Усилитель заднего борта верхний
В узле: 2
13
92-8503028-10
Усилитель заднего борта боковой
В узле: 2
14
290842-П4
Болт М10х170 крепления крайних досок к поперечным брусьям
В узле: 8
15
92Ю-8501120-А
Шайба специальная
В узле: 8
15
92Ю-8501120-А
Шайба специальная
В узле: 16
16
92-8502030-Б
Петля откидных бортов верхняя крайняя в сборе
В узле: 2
16
92-8502030-Б
Петля откидных бортов верхняя крайняя в сборе
В узле: 4
17
248036-П
Шуруп 5х26
В узле: 16
17
248036-П
Шуруп 5х26
В узле: 14
18
252039-П2
Шайба 10,5
В узле: 8
19
92-8501062
Усилитель задней кромки пола
В узле: 1
20
АА-120637-Д
Ось бортовых петель
В узле: 8
20
АА-120637-Д
Ось бортовых петель
В узле: 3
21
258052-П
Шплинт 3,6х20
В узле: 3
21
258052-П
Шплинт 3,6х20
В узле: 8
22
АА-120641
Шайба квадратная
В узле: 2
22
АА-120641
Шайба квадратная
В узле: 2
23
290974-П4
Болт М12х275
В узле: 2
23
290974-П4
Болт М12х275
В узле: 2
24
92-8503050-А
Крюк затвора платформы правый
В узле: 1
24
92-8503050-А
Крюк затвора платформы правый
В узле: 1
25
92-8501086-04
Подкладка заднего поперечного бруса
В узле: 2
26
92-8501054-10
Брус продольный
В узле: 2
27
91-8501030
Скоба продольного бруса
В узле: 2
28
250514-П2
Гайка М12
В узле: 2
28
250514-П2
Гайка М12
В узле: 2
28
250514-П2
Гайка М12
В узле: 16
29
92-8501032
Брус поперечный задний в сборе
В узле: 1
30
210417-П4
Болт М10х90
В узле: 6
30
210417-П4
Болт М10х90
В узле: 4
31
92-8503054-Б
Петля нижняя заднего борта
В узле: 3
32
АА-120688
Планка усилительная петли заднего борта
В узле: 2
32
АА-120688
Планка усилительная петли заднего борта
В узле: 3
33
92-8501072-10
Стремянка крепления средних брусьев
В узле: 4
34
92-8501074-А
Подкладка стремянок крепления балок
В узле: 4
35
92-8501078-А
Подкладка поперечного бруса
В узле: 4
36
92-8501044-10
Брус поперечный средний
В узле: 2
37
92-8501070
Кронштейн крепления средних поперечных брусьев
В узле: 4
38
91Ю-8502252-А
Шайба специальная
В узле: 10
39
210393-П4
Болт М8х100
В узле: 10
40
53-8502019-Б
Полоса защитная габаритного бруса платформы крайняя
В узле: 4
41
91-8502018-Г
Полоса защитная габаритного бруса платформы средняя
В узле: 4
42
92-8502016-Б
Брус габаритный
В узле: 2
43
210410-П29
Болт М10-6gх50
В узле: 4
43
210410-П4
Болт М10х50 крепления крючка
В узле: 8
44
91Б-8507076
Обойма инструментального ящика
В узле: 2
45
247577-П29
Шуруп 5х25
В узле: 4
46
53-07-8507123
Планка запора крышки инструментального ящика
В узле: 1
47
252037-П29
Шайба 6 ОСТ 37.001.144-96
В узле: 2
48
53-07-8507050
Крышка инструментального ящика в сборе
В узле: 1
49
252004-П29
Шайба 6 ОСТ 37.001.144-96
В узле: 1
49
252004-П29
Шайба 6 ОСТ 37.001.144-96
В узле: 2
50
91Б-8507131
Угольник инструментального ящика
В узле: 2
51
210361-П29
Болт М6-6gх35
В узле: 6
51
210361-П29
Болт М6-6gх35
В узле: 2
51
210361-П29
Болт М6-6gх35
В узле: 3
52
АА-120646-В
Крючок увязочный
В узле: 4
53
92-8501020
Брус поперечный передний в сборе
В узле: 1
54
210416-П4
Болт М10х80
В узле: 2
54
210416-П4
Болт М10х80
В узле: 6
55
252045-П2
Шайба 12,5
В узле: 2
56
92-8504048
Пластина скобы
В узле: 1
57
92-8504046-Б
Скоба среднего крепления переднего борта
В узле: 1
58
91А-8500016-11
Угольник установочный на платформе
В узле: 2
59
252038-П2
Шайба 8
В узле: 5
60
92-8501058
Брус пола усилительный
В узле: 1
61
92-8502054-В
Петля нижняя бокового борта
В узле: 8
62
210390-П4
Болт М8х75 крепления усилительного бруса к доскам
В узле: 5
63
92-8502052
Скоба затвора платформы
В узле: 8
64
АА-120666-Б
Затвор платформы
В узле: 4
65
92-8502056
Подкладка скобы затвора крайняя
В узле: 4
66
92-8502048
Усилитель бокового борта
В узле: 4
67
92-8502057
Подкладка скобы затвора средняя
В узле: 4
68
92-8504040-Б
Планка средняя в сборе
В узле: 1
Содержащиеся в справочниках-каталогах запасные части и детали не предлагаются к продаже, а носят исключительно информационный характер

Ваша заявка была отправлена. В ближайшее время наши специалисты с Вами свяжутся по указанному Вами телефону.

Представьтесь
Поле обязательно для заполнения
Ваш телефон
Введите правильный номер телефона
E-mail
Введите правильный e-mail
Тема
Тема
применяемость финансирование доставка цена, наличие другое сервис и гарантия
Время для звонка
08:00
08:00 09:00 10:00 11:00 12:00 13:00 14:00 15:00 16:00 17:00 18:00 19:00
19:00
08:00 09:00 10:00 11:00 12:00 13:00 14:00 15:00 16:00 17:00 18:00 19:00

Мы постараемся перезвонить в указанное время

Если вы не хотите ждать, то звоните нашим вежливым консультантам:

8 800 100-2-700
Подтвердите, что вы не робот
Подтвердите, что вы не робот
Спасибо!

Ваше сообщение успешно отправлено!

ЗакрытьПовторить попытку