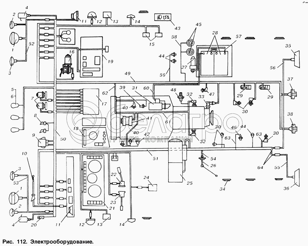
Каталог запасных частей к технике: МАЗ-53366. Электрооборудование

zoom-in zoom-out enlarge shrink circle-right circle-left file-text2 info cart arraw right arraw left zoom out zoom in arraw maximize arraw minimize
1
1
2
2
3
3
4
4
5
6
7
8
9
10
11
11
12
12
13
13
14
14
15
16
17
18
19
20
21
22
23
24
25
26
27
28
29
29
30
30
31
32
32
33
34
35
53363-3805010
Щиток приборов
В узле: 1
СТ-142Д
Стартер
В узле: 1
53366-3805010
Щиток приборов
В узле: 1
1
ФГ122-3711010
Фара головная
В узле: 2
2
2606-3726010
Указатель поворота передний
В узле: 2
3
ФГ152А-3743010
Фара противотуманная
В узле: 2
4
3812. 3710-02.23
Подогрев зеркала
В узле: 2
5
ПФ233-3738000ЭА
Фонарь сигнальный
В узле: 2
6
3466212227
Лампа А24-5ТЛ
В узле: 2
7
МЭ237-3730040Э
Электродвигатель
В узле: 2
8
С306Г/С307Г-3721
Комплект электросигналов
В узле: 1
9
РС951А-3726010-УХЛ
Прерыватель указателей поворотов
В узле: 1
10
АР112-7903000
Антенна
В узле: 1
11
ХГ2.021.030-14
Магнитола в комплекте с динамиками
В узле: 1
12
25.3731010
Фонарь
В узле: 2
13
ПК142. 3714000
Плафон освещения спальных мест
В узле: 2
14
14.3726010Э
Повторитель боковой указателя поворотов
В узле: 2
15
11.3714010-50
Плафон освещения кабины
В узле: 2
16
13.5205010
Стеклоочиститель 3-щеточный
В узле: 2
17
23. 3722-01
Блок предохранителей реле
В узле: 1
18
64221-3805012
Щиток приборов
В узле: 1
19
64221-3722014
Панель блока предохранителей
В узле: 1
20
16. 3741
Клапан пневмосигнала
В узле: 1
21
6303-3805010
Щиток приборов
В узле: 1
22
40.3709
Переключатель стеклоочистителей и стеклоомывателей
В узле: 1
23
60.3709
Переключатель указателя поворотов
В узле: 1
24
ХАТЭ-24
Холодильник
В узле: 1
25
15.8106
Подогреватель
В узле: 1
26
АДЮИ. 407511.002
Датчик уровня топлива
В узле: 1
27
1420. 3737
Выключатель «массы»
В узле: 1
28
6СТ-190А
Аккумуляторная батарея
В узле: 2
29
5320. 3721500
Клапан электромагнитный
В узле: 2
30
ММ125Б-3810600-Э
Включатель пневматический сигнала торможения, блокировки
В узле: 2
31
25. 3708-01
Стартер
В узле: 1
32
ВК418А
Выключатель концевой
В узле: 1
33
2001.3843
Датчик спидометра
В узле: 1
34
3202. 3731
Световозвращатель
В узле: 8
35
7402. 3716
Фонарь задний правьй
В узле: 1
Содержащиеся в справочниках-каталогах запасные части и детали не предлагаются к продаже, а носят исключительно информационный характер

Ваша заявка была отправлена. В ближайшее время наши специалисты с Вами свяжутся по указанному Вами телефону.

Представьтесь
Поле обязательно для заполнения
Ваш телефон
Введите правильный номер телефона
E-mail
Введите правильный e-mail
Тема
Тема
применяемость финансирование доставка цена, наличие другое сервис и гарантия
Время для звонка
08:00
08:00 09:00 10:00 11:00 12:00 13:00 14:00 15:00 16:00 17:00 18:00 19:00
19:00
08:00 09:00 10:00 11:00 12:00 13:00 14:00 15:00 16:00 17:00 18:00 19:00

Мы постараемся перезвонить в указанное время

Если вы не хотите ждать, то звоните нашим вежливым консультантам:

8 800 100-2-700
Подтвердите, что вы не робот
Подтвердите, что вы не робот
Спасибо!

Ваше сообщение успешно отправлено!

ЗакрытьПовторить попытку