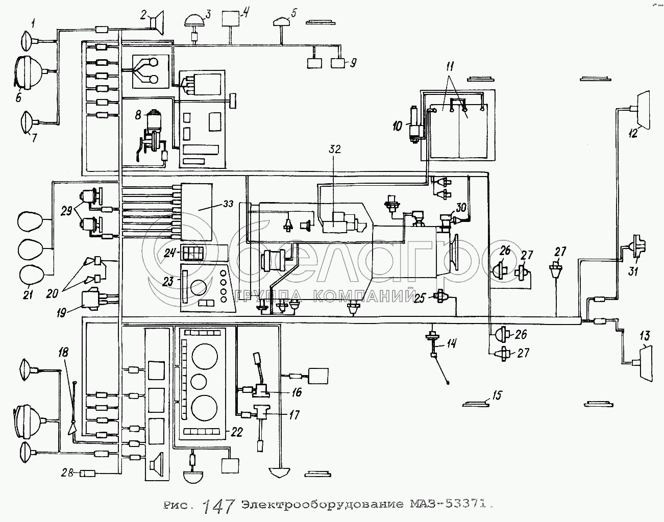
Каталог запасных частей к технике: МАЗ Общий (см. мод-ции). Электрооборудование МАЗ-53371

zoom-in zoom-out enlarge shrink circle-right circle-left file-text2 info cart arraw right arraw left zoom out zoom in arraw maximize arraw minimize
1
2
3
4
5
5
6
7
8
9
10
11
12
13
14
15
16
17
18
19
20
21
22
23
24
25
26
26
27
27
27
28
29
30
31
32
32
33
1
2606-3726010
Указатель поворота передний
В узле: 2
2
ХГ2.021.030-14
Магнитола в комплекте с динамиками
В узле: 1
3
2506.3731010
Фонарь габаритный
В узле: 2
4
ПК142-3714000
Плафон освещения кабины
В узле: 2
5
14.3726010
Повторитель боковой указателя поворота
В узле: 2
5
СБИЕ301.126.002
Повторитель боковой указателя поворота
В узле: 2
6
3416.3711010
Фара
В узле: 2
7
ФП152.3743010
Фара противотуманная
В узле: 2
8
13.5205010
Стеклоочиститель 3-щеточный
В узле: 1
9
11.3714010-50
Плафон освещения кабины
В узле: 2
10
1426-3737000
Выключатель массы
В узле: 1
11
6СТ-190А
Аккумуляторная батарея
В узле: 2
12
7402.3716
Фонарь задний правый
В узле: 1
13
7412.3716
Фонарь задний левый
В узле: 1
14
АДЮИ.407511.002
Датчик уровня топлива
В узле: 1
15
3212.3731
Световозвращатель
В узле: 6
16
4006.3709000
Переключатель стеклоочистителей и стеклоомывателей
В узле: 1
17
6606.3709000
Переключатель указателей поворотов, ближнего и дальнего света
В узле: 1
18
Ар112-7903000
Антенна
В узле: 1
19
РС951А-3726010
Прерыватель указателей поворота
В узле: 1
20
С306/С307-3721000
Комплект электрических сигналов
В узле: 1
21
ПФ233-3738000ЭА
Фонарь сигнальный
В узле: 3
22
53371-3805010
Щиток приборов в сборе
В узле: 1
23
64229-3805012
Щиток приборов в сборе
В узле: 1
24
64221-3831010
Щиток приборов дополнительный в сборе
В узле: 1
25
ММ125Д-3810600Э
Включатель пневматический сигнала торможения, блокировки
В узле: 2
26
ММ370-3829010-УХЛ
Датчик давления воздуха
В узле: 2
27
ММ124Д-3710600Э
Датчик аварийного давления
В узле: 3
28
16.3741
Клапан пневмосигнала
В узле: 1
29
МЭ237-3730040
Электродвигатель
В узле: 2
30
2001.3843010
Датчик спидометра
В узле: 1
31
ПС325-3723100
Розетка штепсельная
В узле: 1
32
СТ-142Д
Стартер
В узле: 1
32
25.3708-01
Стартер
В узле: 1
33
БСК23.3722
Бортовая система контроля
В узле: 1
Содержащиеся в справочниках-каталогах запасные части и детали не предлагаются к продаже, а носят исключительно информационный характер

Ваша заявка была отправлена. В ближайшее время наши специалисты с Вами свяжутся по указанному Вами телефону.

Представьтесь
Поле обязательно для заполнения
Ваш телефон
Введите правильный номер телефона
E-mail
Введите правильный e-mail
Тема
Тема
применяемость финансирование доставка цена, наличие другое сервис и гарантия
Время для звонка
08:00
08:00 09:00 10:00 11:00 12:00 13:00 14:00 15:00 16:00 17:00 18:00 19:00
19:00
08:00 09:00 10:00 11:00 12:00 13:00 14:00 15:00 16:00 17:00 18:00 19:00

Мы постараемся перезвонить в указанное время

Если вы не хотите ждать, то звоните нашим вежливым консультантам:

8 800 100-2-700
Подтвердите, что вы не робот
Подтвердите, что вы не робот
Спасибо!

Ваше сообщение успешно отправлено!

ЗакрытьПовторить попытку