Каталог запасных частей к технике: МЗКТ-6527. Рама 7401-2800012, 7401-2800012-10

zoom-in zoom-out enlarge shrink circle-right circle-left file-text2 info cart arraw right arraw left zoom out zoom in arraw maximize arraw minimize
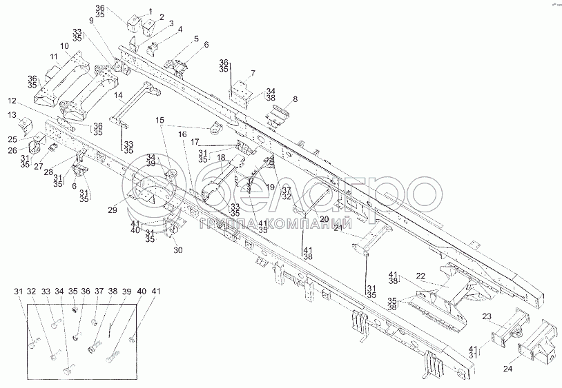
1
2
3
4
5
6
6
7
8
9
10
11
12
13
14
15
16
17
18
19
20
21
22
23
24
25
26
27
28
29
30
31
31
31
31
31
31
31
31
32
32
33
33
33
33
34
34
34
35
35
35
35
35
35
35
35
35
35
35
35
35
35
35
35
36
36
36
36
36
37
37
38
38
38
38
38
39
39
40
40
41
41
41
41
41
41
1
652712-2801088
Кронштейн
В узле: 1
2
6527-5001054
Кронштейн
В узле: 1
3
65271-2803026
Кронштейн
В узле: 1
4
64226-5001720-30
Опора
В узле: 1
5
6527-1001054
Кронштейн
В узле: 1
6
6923-2902444
Кронштейн
В узле: 1
7
7401-2801522
Кронштейн
В узле: 1
8
6527-2902443
Кронштейн
В узле: 1
9
6527-2801118
Кронштейн
В узле: 1
10
65271-2801050
Поперечина
В узле: 1
11
7401-2801050
Поперечина
В узле: 1
12
6527-2801119
Кронштейн
В узле: 1
13
652712-2801089
Кронштейн
В узле: 1
14
6527-2801060
Поперечина
В узле: 1
15
64221-1001049
Кронштейн
В узле: 1
16
6527-2801501
Кронштейн
В узле: 1
17
6527-2801500
Кронштейн
В узле: 1
18
80211-2902200
Поперечина
В узле: 1
19
7401-2801090
Поперечина
В узле: 1
20
6527-2801077
Поперечина
В узле: 1
21
652511-2801076
Поперечина
В узле: 1
22
6527-2801100
Поперечина
В узле: 1
23
652511-2801150
Поперечина
В узле: 1
24
7401-2809196
Поперечина
В узле: 1
25
6527-5001055
Кронштейн
В узле: 1
26
65271-2803027
Кронштейн
В узле: 1
27
64226-5001721-20
Опора левая
В узле: 1
28
6527-1001055
Кронштейн
В узле: 1
29
7401-2801523
Кронштейн
В узле: 1
30
6527-2902442
Кронштейн
В узле: 1
31
371342
Болт М16х1,5-6gх50
В узле: 70
32
372781
Болт М18х1,5-6gx60
В узле: 16
33
371341
Болт М16х1,5-6gх45
В узле: 33
34
372703
Болт 3М16-6gх45
В узле: 8
35
374634
Гайка М16х1,5-6Н
В узле: 199
36
202142
Болт М16х1,5-6hх38
В узле: 52
37
252140
Шайба 18.0Т
В узле: 16
38
371343-01
Болт М16х1,5х55
В узле: 32
39
258286
Шплинт 1,6х300
В узле: 4
40
371345
Болт М16х1,5-6gх65
В узле: 12
41
252139
Шайба 16 ОТ
В узле: 40
Содержащиеся в справочниках-каталогах запасные части и детали не предлагаются к продаже, а носят исключительно информационный характер

Ваша заявка была отправлена. В ближайшее время наши специалисты с Вами свяжутся по указанному Вами телефону.

Представьтесь
Поле обязательно для заполнения
Ваш телефон
Введите правильный номер телефона
E-mail
Введите правильный e-mail
Тема
Тема
применяемость финансирование доставка цена, наличие другое сервис и гарантия
Время для звонка
08:00
08:00 09:00 10:00 11:00 12:00 13:00 14:00 15:00 16:00 17:00 18:00 19:00
19:00
08:00 09:00 10:00 11:00 12:00 13:00 14:00 15:00 16:00 17:00 18:00 19:00

Мы постараемся перезвонить в указанное время

Если вы не хотите ждать, то звоните нашим вежливым консультантам:

8 800 100-2-700
Подтвердите, что вы не робот
Подтвердите, что вы не робот
Спасибо!

Ваше сообщение успешно отправлено!

ЗакрытьПовторить попытку