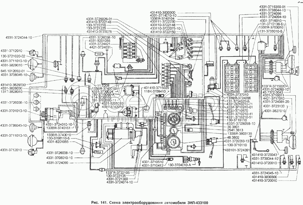
Каталог запасных частей к технике: ЗИЛ-133Г40. Схема электрооборудования автомобиля ЗИЛ-433100

zoom-in zoom-out enlarge shrink circle-right circle-left file-text2 info cart arraw right arraw left zoom out zoom in arraw maximize arraw minimize
645.1012092-01
4331-3701010-10
131-3702010-11
133ВЯ-3703010
130-3704010-А
4331-3708010-10
130-3708110-Б
4331-3709058-10
4331-3709060-10
118К-3709410
130-3710110
130-3710110
131-3710136-Б
4331-3710210-01
4331-3710210-41
4331-3710210-51
4331-3710210-71
4331-3710412
4331-3710510
4331-3710570
4331-3711010-10
4331-3711010-10
4331-3712010
4331-3712010
4331-3714010-10
131-3714320-Б
133ГЯ-3715020
431410-3715020
130-3715060-А
4331-3716010
4331-3716011
4331-3716350-01
4421-3717010
431410-3720010
431410-3720010
130-3721020-02
130-3721225
4331-3721300
431410-3722075-10
130-3722105
133ГЯ-3722105
431410-3722148
431410-3722148
431410-3722150
130-3722210
431411-3722230
431410-3723043
431410-3723076
4331-3723100
4331-3724010-10
4421-3724031
4331-3724044-10
4331-3724045-10
4331-3724074-10
4331-3724080-10
4331-3724081-20
4331-3724090
433101-3724091
4331-3724094-10
133ВЯ-3724096
4331-3724096
4331-3724421
4331-3726026-01
4331-3726038-10
4331-3726038-10
4331-3726038-10
4331-3730024
114-3730166
131-3733010-Б
4331-3737010
4331-3738044-10
4331-3738044-10
4331-3738045-10
4331-3738045-10
133ВЯ-3740010
133ВЯ-3740010
133ВЯ-3740104
133ВЯ-3740161
4331-3742010
36.3801
48.3802
133ВЯ-3803135
2541.3813
4331-3827010
131Т-3828010
4331-3828030
4331-3829010
431410-3829030
431410-3830300
431410-3830300
4331-5205010
11.5208
4331-8201055
4331-8201055
4573720043
645.1012092-01
Пробка перепускного клапана в сборе
В узле: ---
4331-3701010-10
Щеткодержатель в сборе
В узле: ---
131-3702010-11
Реле-регулятор типа РР132А в сборе
В узле: ---
133ВЯ-3703010
Батарея аккумуляторная с электролитом заряженная
В узле: ---
133ВЯ-3703011
Батарея аккумуляторная 6СТ-190ТР сухозаряженная без электролита
В узле: ---
130-3704010-А
Выключатель зажигания ВК350 в сборе
В узле: ---
4331-3708010-10
Стартер СТ142Б1
В узле: ---
130-3708110-Б
Реле стартера РС502
В узле: ---
4331-3709058-10
Переключатель стеклоочистителя 9912.3709
В узле: ---
4331-3709060-10
Комбинированный переключатель света 1112.3769
В узле: ---
118К-3709410
Переключатель электродвигателя отопителя
В узле: ---
130-3710110
Выключатель типа 11.3704 кнопочный
В узле: ---
131-3710136-Б
Выключатель типа ВК-403 в сборе
В узле: ---
4331-3710210-01
Выключатель нагревателя зеркала заднего вида 3832.3710-02.23
В узле: ---
4331-3710210-01
Выключатель нагревателя зеркала заднего вида 3832.3710-02.23
В узле: ---
4331-3710210-02
Выключатель нагревателя зеркала заднего вида 3832.3710-02.23
В узле: ---
4331-3710210-02
Выключатель нагревателя зеркала заднего вида 3832.3710-02.23
В узле: ---
4331-3710210-41
Выключатель нагревателя зеркала заднего вида 3832.3710-02.23
В узле: ---
4331-3710210-41
Выключатель нагревателя зеркала заднего вида 3832.3710-02.23
В узле: ---
4331-3710210-42
Выключатель нагревателя зеркала заднего вида 3832.3710-02.23
В узле: ---
4331-3710210-42
Выключатель нагревателя зеркала заднего вида 3832.3710-02.23
В узле: ---
4331-3710210-51
Выключатель блокировки дифференциала, 3832.3710-10.28
В узле: ---
4331-3710210-51
Выключатель блокировки дифференциала, 3832.3710-10.28
В узле: ---
4331-3710210-52
Выключатель блокировки дифференциала, 3832.3710-10.28
В узле: ---
4331-3710210-52
Выключатель блокировки дифференциала, 3832.3710-10.28
В узле: ---
4331-3710210-71
Выключатель противотуманного заднего фонаря 3832.3710-02.04
В узле: ---
4331-3710210-71
Выключатель противотуманного заднего фонаря 3832.3710-02.04
В узле: ---
4331-3710210-72
Выключатель противотуманного заднего фонаря, 3832.3710-02.04
В узле: ---
4331-3710210-72
Выключатель противотуманного заднего фонаря, 3832.3710-02.04
В узле: ---
4331-3710412
Переключатель габаритных огней и фар головного света
В узле: ---
4331-3710510
Выключатель аварийной световой сигнализации
В узле: ---
4331-3710570
Выключатель освещения щитка приборов ВК416Б-01
В узле: ---
4331-3711010-10
Фара головного света ФГ 150-Г1
В узле: ---
4331-3712010
Фонарь передний ФП130
В узле: ---
4331-3714010-10
Плафон кабины 111.3714
В узле: ---
131-3714320-Б
Фонарь кабины ПК142
В узле: ---
133ГЯ-3715020
Розетка штепсельная переносной лампы ПС400
В узле: ---
431410-3715020
Розетка штепсельная переносной лампы 47К
В узле: ---
130-3715060-А
Лампа подкапотная ПД308А в сборе
В узле: ---
4331-3716010
Фонарь задний правый ФП130
В узле: ---
4331-3716011
Фонарь задний левый ФП130-Б
В узле: ---
4331-3716350-01
Фонарь задний противотуманный 2452.3716 в сборе
В узле: ---
4421-3717010
Фонарь освещения номерного знака ФП131
В узле: ---
431410-3720010
Выключатель сигналов торможения ММ125Д или 2802.3829 в сборе
В узле: ---
130-3721020-02
Сигнал звуковой С311-01
В узле: ---
130-3721225
Реле универсальное 111.3747
В узле: ---
4331-3721300
Зуммер РС508 или 733.3747-01
В узле: ---
431410-3722075-10
Предохранитель термобиметаллический кнопочный 15 А, 293.3722 или ПР315
В узле: ---
130-3722105
Предохранитель 6А
В узле: ---
133ГЯ-3722105
Предохранитель плавкий ПР119Б-01 10А
В узле: ---
431410-3722148
Предохранитель 10 А, ПР310 или 292.3722
В узле: ---
431410-3722150
Предохранитель термобиметаллический кнопочный 15 А, 293.3722 или ПР315
В узле: ---
130-3722210
Предохранитель 7,5А
В узле: ---
431411-3722230
Предохранитель 30А, ПР3 или 291. 3722
В узле: ---
431410-3723043
Панель соединительная 4-х клеммовая в сборе
В узле: ---
431410-3723076
Панель соединительная 2-клеммная 14.3723
В узле: ---
4331-3723100
Розетка штепсельная прицепа ПС300А3-100
В узле: ---
4331-3724010-10
Жгут проводов средний
В узле: ---
4421-3724031
Жгут нагревателя зеркала
В узле: ---
4331-3724032
Жгут проводов верхний в сборе
В узле: ---
4331-3724044-10
Жгут проводов задний правый
В узле: ---
4331-3724045-10
Жгут проводов задний левый
В узле: ---
4331-3724074-10
Жгут проводов сигнализаторов
В узле: ---
4331-3724080-10
Жгут проводов фонаря заднего правого
В узле: ---
4331-3724081-20
Жгут проводов фонаря заднего левого
В узле: ---
4331-3724087
Жгут проводов сигнализатора уровня охлаждающей жидкости
В узле: ---
4331-3724090
Провод стартер-рама
В узле: ---
433101-3724091
Провод аккумуляторная батарея-стартер
В узле: ---
4331-3724094-10
Провод-перемычка между аккумуляторными батареями
В узле: ---
133ВЯ-3724096
Провод аккумуляторная батя-рея—выключатель массы
В узле: ---
4331-3724096
Провод аккумуляторная батарея—выключатель массы
В узле: ---
4331-3724114
Жгут проводов ТВБ
В узле: ---
43313724147
Провод массы сигнала
В узле: ---
4331-3724160-10
Провод заднего контурного фонаря
В узле: ---
4331-3724161-10
Жгут проводов передних контурных фонарей
В узле: ---
4331-3724375
Жгут проводов к фонарям автопоезда
В узле: ---
4331-3724421
Перемычка массы от двигателя к кабине
В узле: ---
4331-3724548
Жгут проводов фар и передних фонарей
В узле: ---
4331-3724594
Жгут проводов стартера
В узле: ---
4331-3724644
Жгут проводов к правой фаре
В узле: ---
4331-3724645
Жгут проводов к левой фаре
В узле: ---
4331-3724691
Провод массы датчика
В узле: ---
4331-3726026-01
Реле-прерыватель указателей поворота РС950-П
В узле: ---
4331-3726038-10
Фонарь автопоезда и указателей поворота 51-3726
В узле: ---
4331-3730024
Электродвигатель отопителя в сборе
В узле: ---
114-3730166
Сопротивление электродвигателя отопителя СЭ300-Б
В узле: ---
131-3733010-Б
Электромагнит клапана
В узле: ---
4331-3737010
Выключатель аккумуляторных батарей дистанционный 49.3710
В узле: ---
4331-3738044-10
Фонарь габаритный задний в сборе 35.3731
В узле: ---
4331-3738045-10
Фонарь габаритный передний в сборе 36.3731
В узле: ---
133ВЯ-3740010
Свеча факельная штифтовая 12 В типа 13.3740
В узле: ---
133ВЯ-3740104
Электротермореле типа 14.3741 электрофакельного подогревателя
В узле: ---
133ВЯ-3740161
Клапан электромагнитный 12 В типа 13.3741
В узле: ---
4331-3742010
Блок трансформаторновыпрямительный 1212.3759
В узле: ---
4331-3747100-10
Клапан электромагнитный в сборе
В узле: ---
36.3801
Комбинация приборов в сборе
В узле: ---
48.3802
Спидометр в сборе
В узле: ---
133ВЯ-3803135
Прерыватель контрольной лампы стояночного тормоза типа РС492 в сборе
В узле: ---
4331-3805010-30
Щиток приборов 18.3805-10
В узле: ---
2541.3813
Тахометр электронный в сборе
В узле: ---
4331-3827010
Датчик указателя уровня топлива 5302.3827
В узле: ---
131Т-3828010
Датчик указателя температуры воды
В узле: ---
4331-3828030
Датчик сигнализатора перегрева охлаждающий жидкости ТМ111
В узле: ---
4331-3829010
Датчик указателя давления масла ММ355
В узле: ---
431410-3829030
Датчик сигнализатора давления масла ММ111Д
В узле: ---
431410-3830300
Датчик аварийного падения давления типа ММ124Д в сборе
В узле: ---
4331-5205010
Стеклоочиститель 35.5205
В узле: ---
11.5208
Омыватель стекла и фар 4331-5208100
В узле: ---
4331-8201055
Нагреватель зеркала 20.3741
В узле: ---
4573720043
Фонарь заднего хода ФП135-В
В узле: ---
Содержащиеся в справочниках-каталогах запасные части и детали не предлагаются к продаже, а носят исключительно информационный характер

Ваша заявка была отправлена. В ближайшее время наши специалисты с Вами свяжутся по указанному Вами телефону.

Представьтесь
Поле обязательно для заполнения
Ваш телефон
Введите правильный номер телефона
E-mail
Введите правильный e-mail
Тема
Тема
применяемость финансирование доставка цена, наличие другое сервис и гарантия
Время для звонка
08:00
08:00 09:00 10:00 11:00 12:00 13:00 14:00 15:00 16:00 17:00 18:00 19:00
19:00
08:00 09:00 10:00 11:00 12:00 13:00 14:00 15:00 16:00 17:00 18:00 19:00

Мы постараемся перезвонить в указанное время

Если вы не хотите ждать, то звоните нашим вежливым консультантам:

8 800 100-2-700
Подтвердите, что вы не робот
Подтвердите, что вы не робот
Спасибо!

Ваше сообщение успешно отправлено!

ЗакрытьПовторить попытку