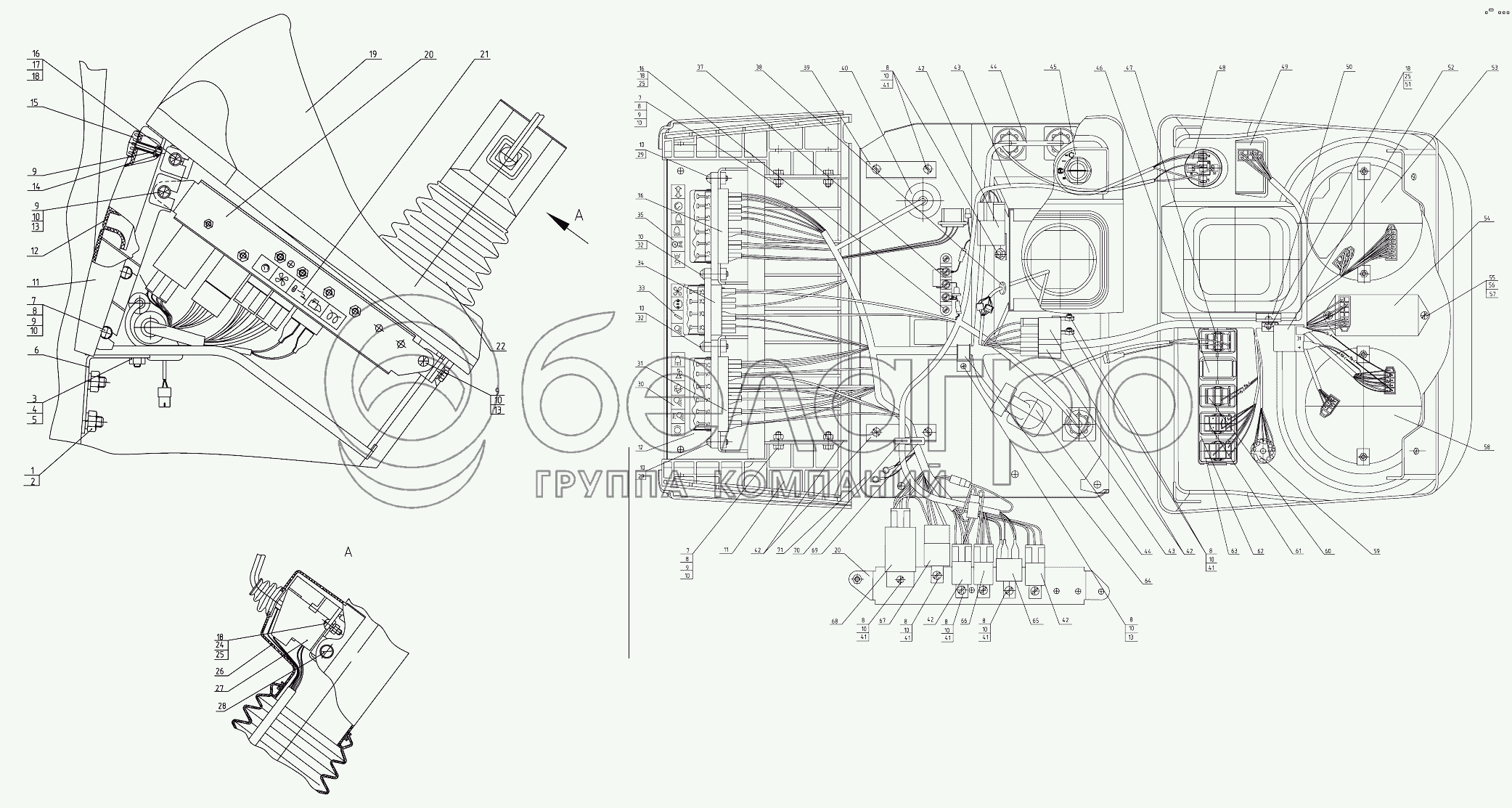
Каталог запасных частей к технике: МТЗ 952.5. Щиток приборов

zoom-in zoom-out enlarge shrink circle-right circle-left file-text2 info cart arraw right arraw left zoom out zoom in arraw maximize arraw minimize
1
2
3
4
5
6
7
7
7
8
8
8
8
8
8
8
8
8
8
9
9
9
9
9
9
10
10
10
10
10
10
10
10
10
10
10
10
10
10
10
10
11
11
12
12
13
13
13
14
15
16
16
17
18
18
18
18
19
20
20
21
22
24
25
25
25
26
27
27
28
29
29
30
31
32
32
33
34
34
35
36
37
38
39
40
41
41
41
41
41
41
42
42
42
42
42
43
43
44
44
45
46
47
47
48
49
50
51
52
53
54
55
56
57
58
59
59
60
60
61
61
62
63
63
64
65
66
67
68
68
69
70
71
59
245.3710
Выключатель аварийный
В узле: 1
245.3710 Выключатель МТЗ, аварийной сигнализации (кнопка аварийки), РФ <10 шт. 518.94 р.
65
738.3747-30
Реле стартера
В узле: 1
738.3747-30 Реле стартера МТЗ, 12в (35.3787-30), РФ >10 шт. 167.66 р.
63
П150М-25.52
Переключатель
В узле: 1
П150М-25.52 переключатель рабочих фар 12В Под заказ 185.72 р.
67
738.3747-40
Реле питания приборов
В узле: 1
738.3747-40 Реле МТЗ стартера 5-конт. 30/30А, 12В, с кронштейном, РФ Под заказ 393.35 р.
22
80-3805012-Б
Уплотнитель
В узле: 1
80-3805012-Б Уплотнитель МТЗ щитка приборов (чехол), Беларусь Под заказ 535.37 р.
68
ЭРП-1
Прерыватель указателей поворота
В узле: 1
ЭРП-1 реле поворотов (8586.6/0031) Под заказ 959.65 р.
60
П150М-14.10
Переключатель
В узле: 1
П150М-14.10 Переключатель клавишный стеклоомывателя ветрового стекла МТЗ, (А) Под заказ 75 р.
26
80-3709023
Кожух
В узле: 1
80-3709023 Кожух МТЗ переключателя ПКП-1, Беларусь Под заказ 49.44 р.
46
80-3801327
Заглушка
В узле: 1
80-3801327 Заглушка МТЗ Под заказ 85.01 р.
52
733.3747
Реле
В узле: 1
733.3747 Реле-сигнализатор (зуммер) (РС 508,473.3787) РФ Под заказ 242.62 р.
53
КД8105-1
Индикатор комбинированный
В узле: 1
КД8105-1 Блок показывающий комбинированный электронный Под заказ 9 876.38 р.
20
80-3805070
Панель
В узле: 1
80-3805070 Панель МТЗ Под заказ 302.92 р.
926-3805010-13
Щиток приборов
В узле: ---
1
М10-6Н.6.019
Гайка
В узле: 2
2
10ОТ
Шайба ОСТ 37.001.115-75
В узле: 2
3
М8-6gх16.88.35.019
Болт
В узле: 2
4
Шайба
В узле: 2
5
С.8.01.019
Шайба
В узле: 1
6
80-3805030
Кронштейн
В узле: 2
7
М6-6gх16.88.35.019
Болт
В узле: 4
8
М6-6Н.6.019
Гайка
В узле: 18
9
С.6.01.019
Шайба
В узле: 10
10
Шайба
В узле: 21
11
826-3805045
Стенка
В узле: 1
12
826-3805061
Крышка
В узле: 1
13
В.М6-6gх16.58.019
Винт
В узле: 4
14
006-010-25-1-4
Кольцо
В узле: 2
15
826-3805065
Винт
В узле: 2
16
В.М5-6gх20.58.019
Винт
В узле: 4
17
С.5.01.019
Шайба
В узле: 4
18
Шайба
В узле: 5
19
826-3805021
Щиток
В узле: 1
21
826-3805025
Табличка
В узле: 1
24
В.М5-6gх16.58.019
Винт
В узле: 3
25
М5-6Н.6.019
Гайка ГОСТ 5915-70
В узле: 3
27
3912.3769-03
Переключатель указателей поворота и света
В узле: 1
27
9779
Переключатель указателей поворота и света
В узле: 1
28
В.2.М6-6gх16.58.05
Винт
В узле: 2
29
В.М6-6gх20.58.019
Винт
В узле: 2
30
80-3805027-В
Табличка
В узле: 1
31
БП-2-01
Блок предохранителей
В узле: 1
32
В.М6-6gх30.58.019
Винт
В узле: 2
33
80-3805037-Г
Табличка
В узле: 1
34
БП-6-02
Блок предохранителей
В узле: 1
34
Б4.3722.2.01
Блок предохранителей
В узле: 1
35
80-3805026
Табличка
В узле: 1
36
БП-1-01
Блок предохранителей
В узле: 1
37
СДФ-4.1
Сопротивление добавочное
В узле: 1
38
50-4607064
Втулка
В узле: 1
39
80-3805043
Кронштейн
В узле: 2
40
80-3723048
Втулка
В узле: 1
41
В.М6-6gх12.58.019
Винт
В узле: 13
42
752.3777.000-10
Реле
В узле: 5
43
926-3724517
Жгут
В узле: 1
44
926.4-3724395
Жгут
В узле: 1
45
826-3805013-01
Табличка
В узле: 1
47
П150М-14.48
Переключатель
В узле: 1
47
ПК150-14.48
Переключатель
В узле: 1
48
14.0313.0000
Выключатель стартера
В узле: 1
49
КД8105-П
Пульт управления
В узле: 1
50
80-3723038
Скоба
В узле: 1
51
В.М5-6gх12.58.019
Винт
В узле: 1
54
БИ8112.3803-1
Блок индикаторов
В узле: 1
55
В.М4-6gх12.58.019
Винт
В узле: 2
56
С.4.01.019
Шайба
В узле: 2
57
4ОСТ37.001.115-75
Шайба
В узле: 2
58
КД8110-1
Комбинация приборов КП-5 CAN
В узле: 1
59
249.3710-05
Выключатель аварийной сигнализации
В узле: 1
60
ПК150-14.10
Выключатель стеклоомывателя
В узле: 1
61
П147М-04.29
Переключатель
В узле: 1
61
ПК147-04.29
Переключатель
В узле: 1
62
826-3710011
Гнездо выключателей
В узле: 1
63
ПК150-25.52
Выключатель фар рабочих
В узле: 1
64
80-3723043
Скоба
В узле: 1
66
752.3777.000-20
Реле на размыкание
В узле: 1
68
РП-1
Прерыватель указателей поворота
В узле: 1
69
70-3723042-02
Втулка
В узле: 1
70
70-3723042-01
Втулка
В узле: 1
71
80-3805050-Б1-03
Основание
В узле: 1
Содержащиеся в справочниках-каталогах запасные части и детали не предлагаются к продаже, а носят исключительно информационный характер

Ваша заявка была отправлена. В ближайшее время наши специалисты с Вами свяжутся по указанному Вами телефону.

Представьтесь
Поле обязательно для заполнения
Ваш телефон
Введите правильный номер телефона
E-mail
Введите правильный e-mail
Тема
Тема
применяемость финансирование доставка цена, наличие другое сервис и гарантия
Время для звонка
08:00
08:00 09:00 10:00 11:00 12:00 13:00 14:00 15:00 16:00 17:00 18:00 19:00
19:00
08:00 09:00 10:00 11:00 12:00 13:00 14:00 15:00 16:00 17:00 18:00 19:00

Мы постараемся перезвонить в указанное время

Если вы не хотите ждать, то звоните нашим вежливым консультантам:

8 800 100-2-700
Подтвердите, что вы не робот
Подтвердите, что вы не робот
Спасибо!

Ваше сообщение успешно отправлено!

ЗакрытьПовторить попытку