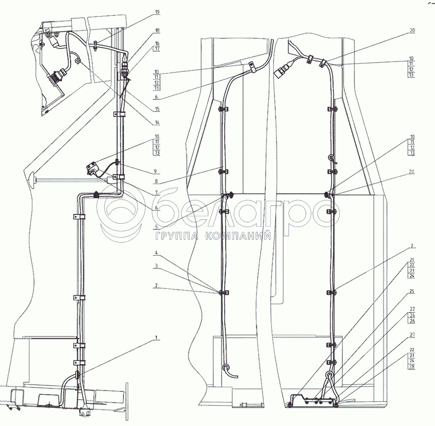
Каталог запасных частей к технике: МТЗ-1021.3. Электрооборудование кабины

zoom-in zoom-out enlarge shrink circle-right circle-left file-text2 info cart arraw right arraw left zoom out zoom in arraw maximize arraw minimize
80-3700050-Г-03
1
2
2
3
4
5
6
6
7
8
9
10
10
10
10
11
11
11
11
12
12
12
12
13
13
13
13
14
15
16
17
18
19
20
20
21
22
22
22
23
23
24
24
24
25
26
27
28
3
А37.10.031
Бонка
В узле: 6
А37.10.031 Бонка МТЗ, Беларусь Под заказ 4.04 р.
7
80-3710012
Кронштейн
В узле: 1
80-3710012 Кронштейн МТЗ Под заказ 61.06 р.
80-3700050-Г-03
Электрооборудование кабины
В узле: ---
1
70-3723042-02
Втулка
В узле: 1
2
85-3723041
Скоба
В узле: 6
4
2-4x16.019
Шуруп
В узле: 6
5
70-1115012-01
Хомутик
В узле: 2
6
3710.60
Выключатель лампы ручного тормоза
В узле: 1
8
80-3724300-П
Жгут
В узле: 1
9
70-3723042-01
Втулка
В узле: 1
10
В.М5-6gx16.58.019
Винт
В узле: 5
11
М5-6Н.6.019
Гайка ГОСТ 5915-70
В узле: 5
12
С 5.01.019
Шайба
В узле: 5
13
Шайба
В узле: 5
14
3829.15
Датчик аварийного давления Масла (ДАДМ-03)
В узле: 1
15
85-3710032
Рычаг
В узле: 1
16
85-3710025
Гайка
В узле: 1
17
14Л
Шайба
В узле: 1
18
3720.10
Выключатель сигнала торможения
В узле: 1
19
80-3723045
Манжета
В узле: 2
20
80-3723038
Скоба
В узле: 3
21
M6-6gx20.58.35.019
Болт
В узле: 1
22
М6-6Н.6.019
Гайка
В узле: 5
23
С 6.01.019
Шайба
В узле: 2
24
Шайба
В узле: 6
25
3723.20
Панель соединительная трехконтактная
В узле: 2
26
В.М6-6gx20.58.019
Винт
В узле: 4
27
70-3723034
Крышка панели
В узле: 1
28
М6-6gx25.88.35.019
Болт
В узле: 1
Содержащиеся в справочниках-каталогах запасные части и детали не предлагаются к продаже, а носят исключительно информационный характер

Ваша заявка была отправлена. В ближайшее время наши специалисты с Вами свяжутся по указанному Вами телефону.

Представьтесь
Поле обязательно для заполнения
Ваш телефон
Введите правильный номер телефона
E-mail
Введите правильный e-mail
Тема
Тема
применяемость финансирование доставка цена, наличие другое сервис и гарантия
Время для звонка
08:00
08:00 09:00 10:00 11:00 12:00 13:00 14:00 15:00 16:00 17:00 18:00 19:00
19:00
08:00 09:00 10:00 11:00 12:00 13:00 14:00 15:00 16:00 17:00 18:00 19:00

Мы постараемся перезвонить в указанное время

Если вы не хотите ждать, то звоните нашим вежливым консультантам:

8 800 100-2-700
Подтвердите, что вы не робот
Подтвердите, что вы не робот
Спасибо!

Ваше сообщение успешно отправлено!

ЗакрытьПовторить попытку