Каталог запасных частей к технике: ЧТЗ Т-10М. Кабина (для трактора с гидромеханической трансмиссией)

zoom-in zoom-out enlarge shrink circle-right circle-left file-text2 info cart arraw right arraw left zoom out zoom in arraw maximize arraw minimize
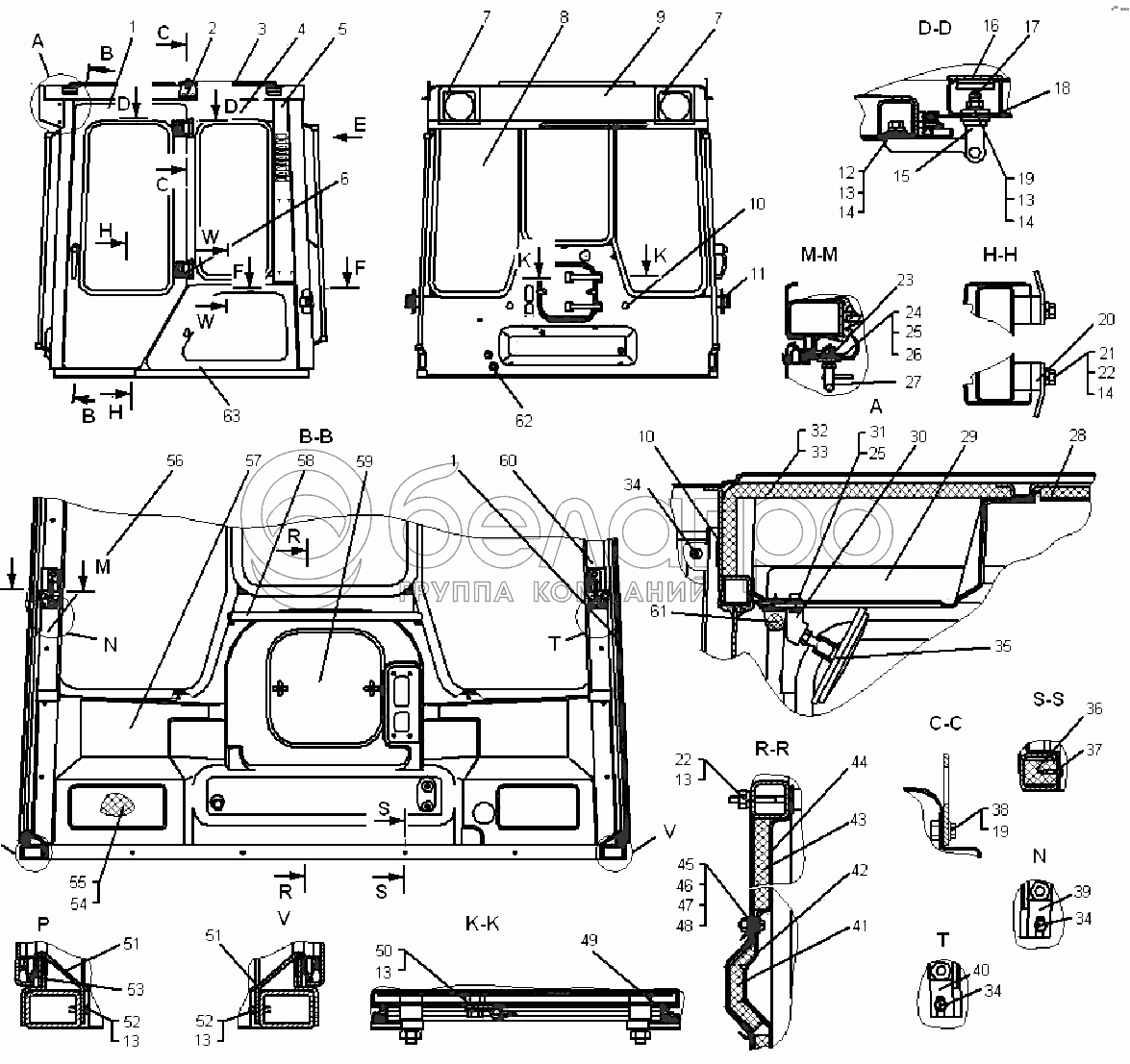
1
1
1
2
3
4
4
5
6
7
7
8
8
8
9
10
10
11
11
12
13
13
13
13
13
13
14
14
14
15
16
17
18
19
19
20
21
22
22
23
24
25
25
26
27
28
29
30
31
32
33
34
34
34
35
36
37
38
39
40
41
42
43
44
45
46
47
48
49
50
51
51
52
52
53
54
55
56
57
57
58
59
59
60
61
62
63
64-59-44-01СП
Кабина
В узле: 1
64-59-44СП
Кабина
В узле: 1
64-59-44-03СП
Кабина
В узле: 1
64-59-44-02СП
Кабина
В узле: 1
1
64-59-267СП
Дверь
В узле: 1
1
64-59-267-01СП
Дверь
В узле: 1
2
50-59-1157
Петля
В узле: 2
3
50-59-814СП
Установка люка
В узле: 1
4
64-59-254СП
Каркас
В узле: 1
4
64-59-254-01СП
Каркас
В узле: 1
5
64-59-260СП
Кожух
В узле: 1
6
50-59-817-01СП
Шарнир
В узле: 2
7
700-42-2772
Накладка
В узле: 2
8
64-59-262СП
Установка стеклопакетов
В узле: 1
8
64-59-261СП
Установка стекол
В узле: ---
8
64-59-261-01СП
Установка стекол
В узле: ---
9
50-59-697СП
Щиток
В узле: 1
10
700-40-9032
Пробка
В узле: 14
11
64-59-211СП
Защелка
В узле: 2
11
50-59-440СП
Защелка
В узле: 2
12
БолтМ10-6gx25.58.Ц9.ч.
Болт М10-6gx25.58.Ц9.ч.
В узле: 8
13
Шайба10.ОТ.65Г.09
Шайба 10.ОТ.65Г.09
В узле: 18
14
31308-02
Шайба 10.01.10.Ц9.ч
В узле: 4
15
50-59-817СП
Шарнир
В узле: 2
16
700-42-2659
Заглушка
В узле: 4
17
Пломба
Пломба
В узле: 1
18
3197-03
Шайба 10х3.02.3кп.Ц9.ч
В узле: 8
19
БолтМ10-6gx30.58.Ц9.ч.
Болт М10-6gx30.58.Ц9.ч.
В узле: 8
20
64-59-288
Проставка
В узле: 2
21
БолтМ10-6gx35.58.Ц9.ч.
Болт М10-6gx35.58.Ц9.ч.
В узле: 4
22
ГайкаМ10-7Н.6.Ц9.ч
Гайка М10-7Н.6.Ц9.ч
В узле: 2
23
64-59-315
Прокладка
В узле: 6
24
БолтМ6-6gx20.88.35
Болт М6-6gx20.88.35
В узле: 4
25
Шайба6Т.65Г.09
Шайба 6Т.65Г.09
В узле: 24
26
31358-02
Шайба 6.01.08кп.Ц9.ч
В узле: 12
27
64-59-280
Скоба
В узле: 2
28
700-40-9323
Панель
В узле: 1
29
64-59-253СП
Кожух
В узле: 1
30
50-59-415СП
Опора
В узле: 1
31
БолтМ6-6gx16.88.35
Болт М6-6gx16.88.35
В узле: 2
32
700-40-8828
Панель
В узле: 1
33
700-40-8830
Панель
В узле: 1
34
Е39410П26
Винт специальный
В узле: 42
35
50-59-650СП
Зеркало
В узле: 1
36
700-42-2660
Пробка
В узле: 5
37
700-35-2191
Винт самонарезающий самосверлящий 4,2х19
В узле: 90
38
40912
Кольцо
В узле: 4
39
64-59-274СП
Планка
В узле: 1
40
64-59-274-01СП
Планка
В узле: 1
41
700-40-8838-01
Панель
В узле: 1
42
700-40-8838
Панель
В узле: 1
43
700-40-8824-01
Панель
В узле: 1
44
700-40-8824
Панель
В узле: 1
45
ВинтВ.М8-6gx35.58.Ц9.ч
Винт В.М8-6gx35.58.Ц9.ч
В узле: 2
46
ГайкаМ8-7Н.6.Ц9.ч
Гайка М8-7Н.6.Ц9.ч
В узле: 6
47
Шайба8Т.65Г.09
Шайба 8Т.65Г.09
В узле: 7
48
31386-03
Шайба 8.02.3кп.Ц9.ч
В узле: 12
49
700-40-8842-02
Уплотнитель
В узле: 1
50
БолтМ10-6gx18.58.Ц9.ч.
Болт М10-6gx18.58.Ц9.ч.
В узле: 2
51
64-59-272
Порожек
В узле: 2
52
ВинтВ.М6-6gx16.58.Ц9.ч
Винт В.М6-6gx16.58.Ц9.ч
В узле: 32
53
700-40-8842
Уплотнитель
В узле: 2
54
700-40-8823
Панель
В узле: 1
55
700-40-8823-01
Панель
В узле: 1
56
700-42-2982
Панель
В узле: 1
57
700-42-2627
Панель
В узле: 1
57
700-42-2627-01
Панель
В узле: 1
58
50-59-630СП
Поручень
В узле: 1
59
50-59-548СП
Крышка
В узле: 1
59
50-59-548-01СП
Крышка
В узле: 1
60
700-42-2982-01
Панель
В узле: 1
61
64-59-217СП
Солнцезащитная шторка.Комплект
В узле: 1
62
700-40-2692
Колпачок
В узле: 2
63
64-59-277СП
Крышка
В узле: 1
Содержащиеся в справочниках-каталогах запасные части и детали не предлагаются к продаже, а носят исключительно информационный характер

Ваша заявка была отправлена. В ближайшее время наши специалисты с Вами свяжутся по указанному Вами телефону.

Представьтесь
Поле обязательно для заполнения
Ваш телефон
Введите правильный номер телефона
E-mail
Введите правильный e-mail
Тема
Тема
применяемость финансирование доставка цена, наличие другое сервис и гарантия
Время для звонка
08:00
08:00 09:00 10:00 11:00 12:00 13:00 14:00 15:00 16:00 17:00 18:00 19:00
19:00
08:00 09:00 10:00 11:00 12:00 13:00 14:00 15:00 16:00 17:00 18:00 19:00

Мы постараемся перезвонить в указанное время

Если вы не хотите ждать, то звоните нашим вежливым консультантам:

8 800 100-2-700
Подтвердите, что вы не робот
Подтвердите, что вы не робот
Спасибо!

Ваше сообщение успешно отправлено!

ЗакрытьПовторить попытку