Каталог запасных частей к технике: ХТЗ Т-151К. Кабина

zoom-in zoom-out enlarge shrink circle-right circle-left file-text2 info cart arraw right arraw left zoom out zoom in arraw maximize arraw minimize
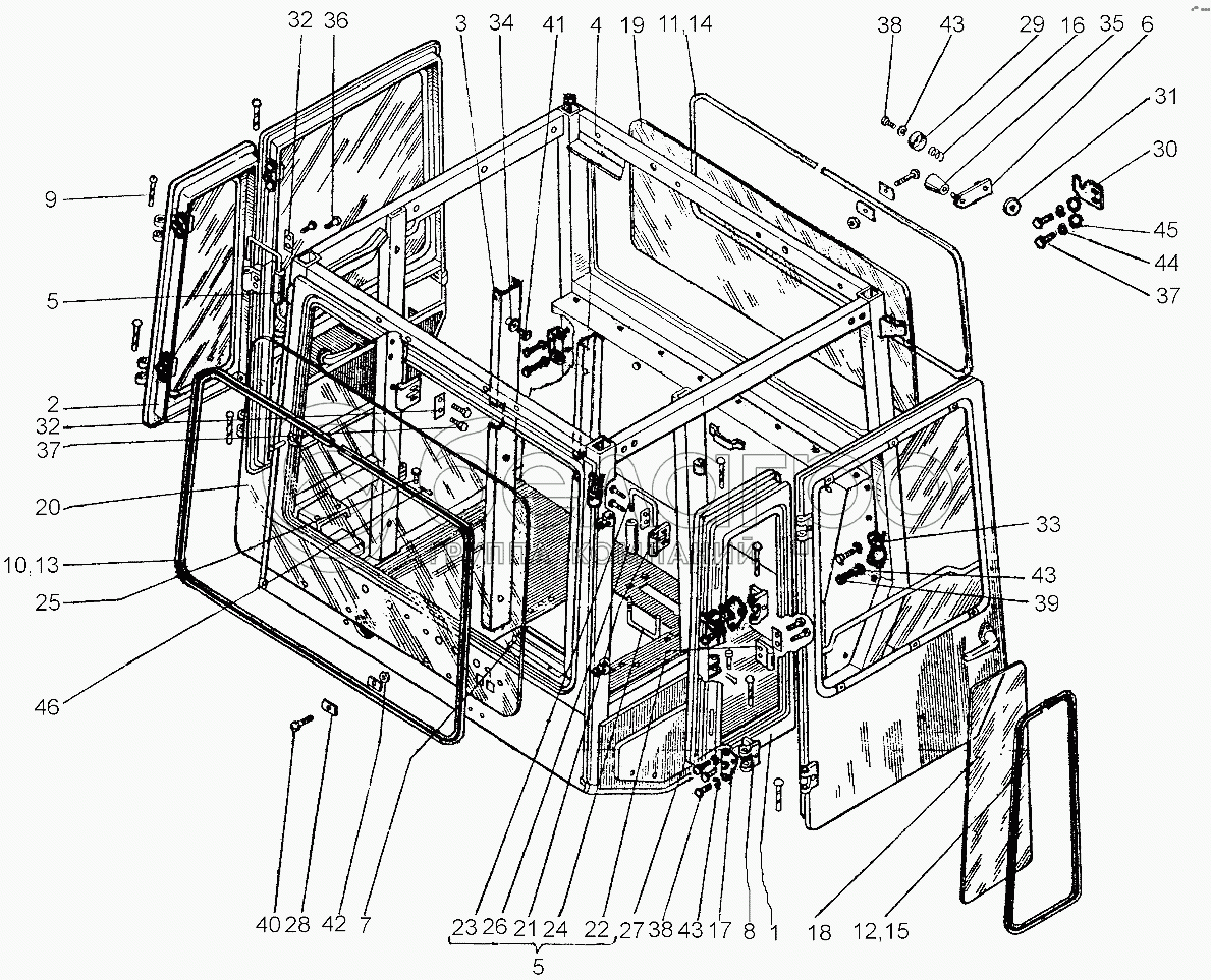
1
2
3
4
5
5
6
7
8
9
10
11
12
13
14
15
16
17
18
19
20
21
22
23
24
25
26
27
28
29
30
31
32
32
33
34
35
36
37
37
38
38
39
40
41
42
43
43
43
44
45
46
1
150М.45.013
Рамка левая
В узле: 1
2
150М.45.028
Рамка правая
В узле: 1
3
150М.45.056
Каркас правый
В узле: 1
4
150М.45.056-01
Каркас левый
В узле: 1
5
150М.45.057-1
Ограничитель
В узле: 2
6
150М.45.094
Защелка
В узле: 2
7
151К.45.117
Панель
В узле: 1
8
151К.45.208
Петля
В узле: 4
9
151К.45.484
Ось
В узле: 8
10
151К.45.487
Уплотнитель
В узле: 1
11
151К.45.487-01
Уплотнитель
В узле: 1
12
151К.45.487-03
Уплотнитель
В узле: 2
13
151К.45.496
Уплотнение
В узле: 1
14
151К.45.496-01
Уплотнение
В узле: 1
15
151К.45.496-03
Уплотнение
В узле: 2
16
8.20.002
Пружина
В узле: 2
17
150М.45.131
Планка
В узле: 4
18
150М.45.138
Стекло
В узле: 2
19
150М.45.139-1
Стекло
В узле: 1
20
150М.45.140-1
Стекло
В узле: 1
21
150М.45.149-1
Кронштейн
В узле: 2
22
150М.45.150-1
Кронштейн
В узле: 2
23
150М.45.152-1
Тяга
В узле: 2
24
150М.45.152-1-01
Тяга
В узле: 2
25
150М.45.215
Ось
В узле: 2
26
150М.45.263-1
Ручка
В узле: 2
27
150М.45.269-02
Уплотнитель
В узле: 2
28
150М.45.364
Скоба
В узле: 24
29
150М.45.376
Колпачок
В узле: 2
30
150М.45.377
Зацеп
В узле: 2
31
150М.45.380
Накладка
В узле: 2
32
150М.45.388
Шайба
В узле: 4
33
150М.45.405
Упор
В узле: 2
34
150.45.449
Шайба специальная
В узле: 6
35
А13.05.000
Рукоятка управления
В узле: 2
36
М8х12.7796
Болт
В узле: 4
37
М8х16.7796
Болт
В узле: 8
38
М6х12.7798
Болт
В узле: 14
39
М6х16.7798
Болт
В узле: 4
40
М3х30.17473
Винт (d=3, l=30, L0=12, H=2,1, D=5,5)
В узле: 12
41
М6х20.17475
Винт
В узле: 6
42
М3.5927
Гайка (d=3, H=2,4, S=5,5)
В узле: 12
43
6 65Г.6402
Шайба
В узле: 18
44
8 65Г.6402
Шайба
В узле: 4
45
8.04.11371
Шайба
В узле: 4
46
1,6х12.397
Шплинт
В узле: 2
Содержащиеся в справочниках-каталогах запасные части и детали не предлагаются к продаже, а носят исключительно информационный характер

Ваша заявка была отправлена. В ближайшее время наши специалисты с Вами свяжутся по указанному Вами телефону.

Представьтесь
Поле обязательно для заполнения
Ваш телефон
Введите правильный номер телефона
E-mail
Введите правильный e-mail
Тема
Тема
применяемость финансирование доставка цена, наличие другое сервис и гарантия
Время для звонка
08:00
08:00 09:00 10:00 11:00 12:00 13:00 14:00 15:00 16:00 17:00 18:00 19:00
19:00
08:00 09:00 10:00 11:00 12:00 13:00 14:00 15:00 16:00 17:00 18:00 19:00

Мы постараемся перезвонить в указанное время

Если вы не хотите ждать, то звоните нашим вежливым консультантам:

8 800 100-2-700
Подтвердите, что вы не робот
Подтвердите, что вы не робот
Спасибо!

Ваше сообщение успешно отправлено!

ЗакрытьПовторить попытку